PROYECTOS DE INSTALACIONES Y LEGALIZACIÓN PARA NAVE INDUSTRIAL DESTINADA A TALLER DE REPARACION DE LLANTAS, SITUADA EN CALLE ALMAZARA 16,03680 ASPE (ALICANTE)

Fecha Proyecto

Febrero 2025

Fecha Obra

Octubre 2025

Promotor

Llantas Fames S.L.

Ubicación

Calle Almazara 16, 03680 Aspe

Categoría
2025, Aperturas y Actividad, Instalaciones Industria
Sobre este proyecto

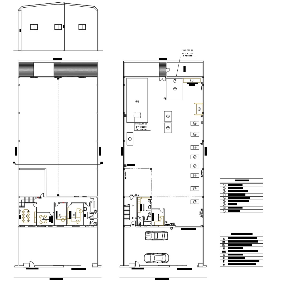
El grupo Llantas Fames, nos encarga el diseño de la nave con sus instalaciones para el taller de reparación de llantas situado en calle Almazara 16 Aspe.

Proyectos Realizados:
  • PROYECTO DE INSTALACIÓN ELÉCTRICA EN BAJA TENSIÓN PARA SERVICIO TERRITORIAL DE INDUSTRIA.
  • PROYECTO DE INSTALACIÓN DE PROTECCIÓN CONTRA INCENDIOS PARA SERVICIO TERRITORIAL DE INDUSTRIA.
  • PROYECTO DE LICENCIA AMBIENTAL PARA AYUNTAMIENTO DE ASPE.
  • OBTENCIÓN DE REGISTRO INDUSTRIAL.
Resumen de privacidad
Pedro Asensio - Ingeniería

Esta web utiliza cookies para que podamos ofrecerte la mejor experiencia de usuario posible. La información de las cookies se almacena en tu navegador y realiza funciones tales como reconocerte cuando vuelves a nuestra web o ayudar a nuestro equipo a comprender qué secciones de la web encuentras más interesantes y útiles.

Cookies estrictamente necesarias

Las cookies estrictamente necesarias tiene que activarse siempre para que podamos guardar tus preferencias de ajustes de cookies.

Cookies de terceros

Esta web utiliza Google Analytics para recopilar información anónima tal como el número de visitantes del sitio, o las páginas más populares.

Dejar esta cookie activa nos permite mejorar nuestra web.